Im aktuellen Stand kann die eRikscha gefahren werden. Jedoch gibt es einige Aspekte,
die für die Weiterentwicklung eine wichtige Rolle spielen könnten.
________________________________________________________
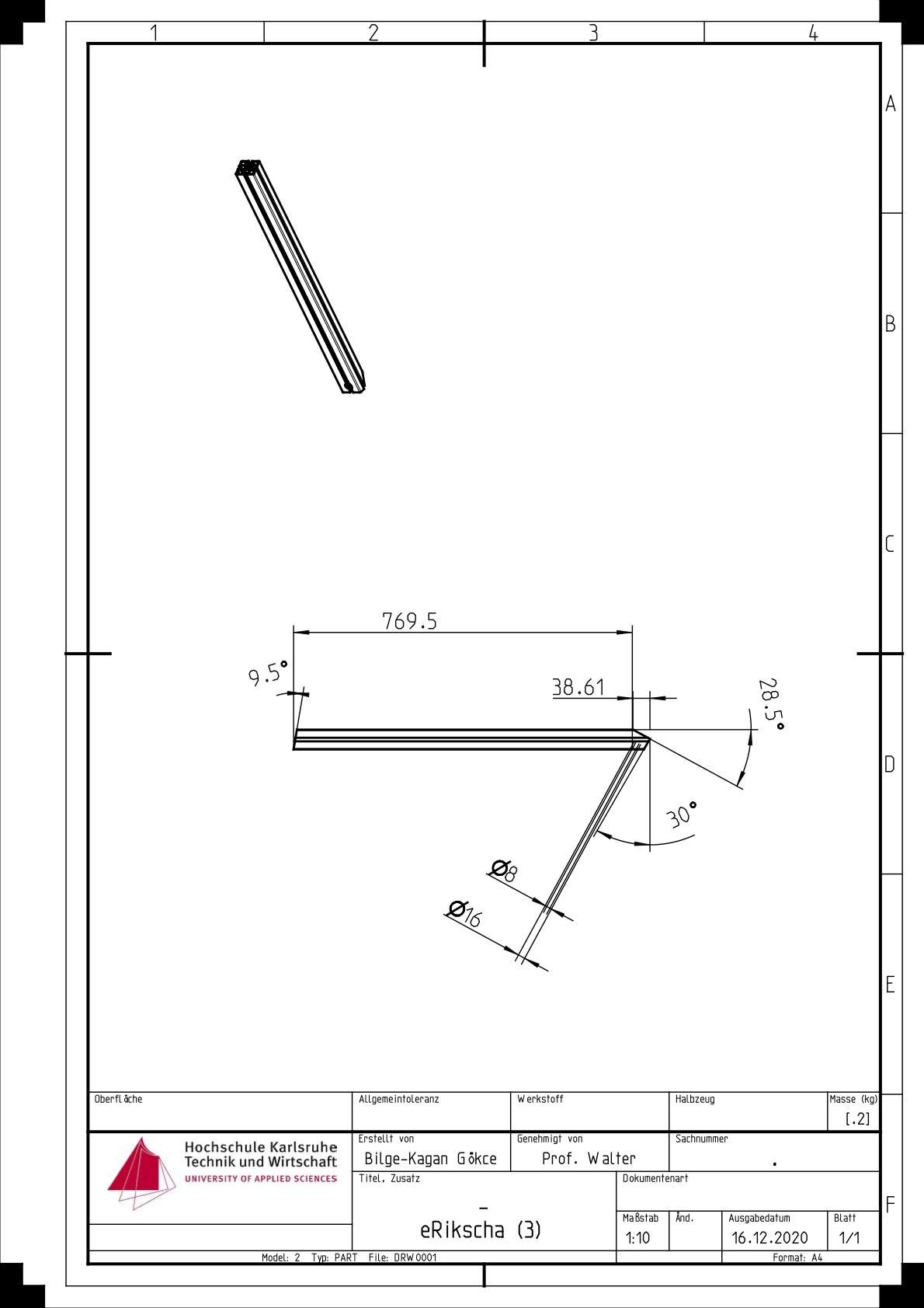
Erneuerung des Sattelrohrs
Die aktuelle
Sattelhalterung erfüllt seine Zwecke. Jedoch war die Bitte , diesen
nicht, wie aktuell der Fall ist, verschweißt, sondern
zusammenmontiert zu konstruieren. Die Konstruktion wurde mit
Hilfe einer studentischen Gruppe fertiggestellt, konnte jedoch
aufgrund der hohen Belastung der Werkstatt nicht hergestellt werden.
Sattelhalterung
Detailliertere Informationen können
von der
eTÜV-Gruppe entnommen werden.
________________________________________________________
Kabelschutz
Der Grund für die meisten Rückrufaktionen in der
Automobilindustrie sind aufgrund von Kabelproblemen. Auch bei der
eRikscha besteht die Gefahr, dass die Kabel aufgrund von Reibung
etc. brechen können. Auch hierfür wurde bereits eine Überlegung
gemacht und ein "Kabelgehäuse" konstruiert. Somit könnten sich die
Kabel, die entlang des Minitec-Profils und unter des Pedals
verlaufen, nicht an diesen verfangen.

Kabelgehäuse
Zusätzlich ist es ratsam eine geeignete
Position für den Bremsschlauch zu finden, da er im aktuellen Zustand
an der Kette reiben und somit brechen kann.
________________________________________________________
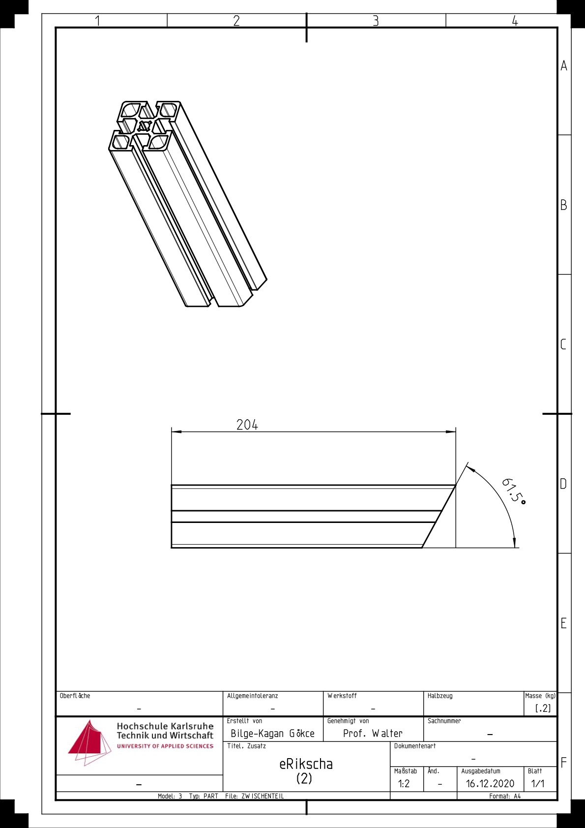
Verlängerung des MiniTec-Profils / der eRikscha
Nach Testfahrten mit der eRikscha, hat man gemerkt, dass
wenn der/die Fahrer/in eine überdurchnittliche Schuhgröße hat,
diese/r sich mit der Hintersohle an das Profil anstoßen kann. Um
dies zu umgehen, wurde eine Konstruktion gefertigt und auch zur
Werkstatt übergeben. Aufgrund der hohen Belastung, konnten die Teile
aber erst kurz vor Ende der Bachelorarbeit fertiggestellt und nicht
mehr verwendet werden
 

________________________________________________________
Blinker-Schutz
Da die eRikscha auf dem Hochschulgelände verwendet wird,
besteht die Gefahr, dass bei Kontakt mit Steinen die Blinker
(Plastikgehäuse) sehr leicht zerbrechen könnten. Deswegen wäre ein
Gehäuse an diesen Blinkern angebracht.

Rückseite der eRikscha (Blinker links vom unteren Warnlicht)
________________________________________________________
Transportkise mit Rädern
Der Grundgedanke der eRikscha besteht darin, den Transport
für die Hausmeister zu erleichtern. Da diese aber gerne die Pakete
mit einem Sackkarren innerhalb der Hochschulgebäuden transportieren,
wäre eine Weiterentwicklung diesbezüglich, dass die Transportkiste
mit einem Sackkarren verbunden und somit direkt ausgebaut und mit
dem Karren innerhalb des Gebäudes weitertransportiert werden kann.
________________________________________________________
Geschwindigkeitsanzeige
Diese Erweiterung liegt im Ermessen der
Kreativität der Studierenden und kann beliebig weiterentwickelt
werden. Die Überlegung war einen Hallsensor (KY024) an der
Radbefestigung zu montieren und an den Speichen Magnete zu kleben.
Dieser Sensor müsste im Nachhinein mit einem ESP32 verbunden und
anschließend Informationen an das OLED-Display, welcher an der
Lenkstange befestigt wird, übermitteln.
Das Gehäuse für das
OLED-Display könnte folgendermaßen aussehen:
 
Gehäuse für das Display ------ Befestigung an der
Lenkstange
|